Teatro Municipal de San Bernardo
El Ex Teatro Municipal de San Bernardo está ubicado en la esquina generada por las calles Victoria y Arturo Prat en la comuna de San Bernardo (Chile).
Teatro Municipal de San Bernardo | ||
---|---|---|
33°35′35″S 70°42′10″O | ||
![]() | ||
País |
![]() | |
Historia
Desde su apertura en 1938 hasta el año 1953 el teatro fue propiedad municipal, arrendado y administrado por el comerciante Primitivo Santander, quien lo compró el año ‘53 y lo mantiene bajo su poder hasta la década del '60, años en que es adquirido por la familia Arenillas, los actuales dueños.
Fue construido para ser usado como sala de cine y eventos sociales, pero al pasar los años, se utilizó también para shows de compañías de comedias, giras artísticas y graduaciones. Su último uso fue una discoteca llamada "Viejo teatro Pub San Bernardo"
Actualmente el inmueble se encuentra en estado de abandono. Denota el paso del tiempo tanto en su fachada como en su interior. Dado esto la comunidad sambernardina gestiona la recolección de firmas para devolver el teatro a la propiedad de la comuna, para rehabilitarlo y ponerlo en valor.
Discurso inaugural, 12 de febrero de 1938, San Bernardo (Chile):
Señor Gobernador, señoras y señores:
Una vez llegado a la municipalidad, mi más grande preocupación ha sido la de servir los intereses de San Bernardo y satisfacer cada una de sus necesidades.
A vosotros lo entrega la Municipalidad, ya que para vosotros ha sido construido: os ruego si considerar que sólo como un homenaje a la ciudad y al vecindario, se inaugura hoy 12 febrero, aun cuando la obra está inconclusa, faltando detalles que le darán mayor presentación y comodidad.
Como no me ha sido posible darle solución a todos los problemas, debido a factores de orden económico, que entraban toda iniciativa, estime que concluir el teatro que alcaldes anteriores habían iniciado, era una demostración palpable que la municipalidad, dentro de sus escasos medios, trataba de satisfacer aspiraciones justas y antiguamente sentidas por el vecindario.
Así fue como, contando con la valiosa cooperación de todos mis colegas y la del diputado don Pedro García de la Huerta pude encontrar los fondos necesarios para dar término a esta obra y entregarla hoy a la ciudad para que tenga un local cómodo y elegante si se quiere, donde venir a recrearse con actos que le hablen al espíritu y contribuyan a hacerle más simpática esta jornada de la vida que necesitamos adornarla para que no sea un desierto abrasador de egoísmos y sufrimientos.
He encontrado un concesionario que, estoy cierto, pondrá todo su entusiasmo a satisfacer debidamente las aspiraciones muy justas de tener espectáculos buenos, en el amplio sentido del concepto, que recreen a la vez que eduquen.
El Alcalde que habla, se siente orgulloso de entregar a la ciudad está obra, prueba palpable de que la municipalidad se preocupa del pueblo, y de recordar en esta oportunidad a los alcaldes anteriores señores: Arturo Dagnino y Jorge Valdivieso, cuya labor en este sentido, me ha cabido continuar.
Señores, espero comprenderéis el sacrificio que significa la construcción de este teatro y que él envuelve, a la vez que una obra de adelanto local, un medio poderoso de cultura y de esparcimiento.
He dicho.La Opinión (19 de febrero de 1938)
Arquitectura


- Su estructura está compuesta por: muros y galería, concreto armado; techo de la sala es de raulí reforzado con estructura metálica; y suelo de la sala estructura de madera.
- Es un elemento de gran presencia por su escala en la comuna. Alcanza en su fachada principal la altura de 16,7 m, siendo la altura promedio del lugar 7 a 10,5 m.
- Se destaca una gran influencia de la arquitectura moderna por la pureza de las líneas en su fachada y la utilización de hormigón y acero en su resolución estructural, la resolución de la planta está en función de la geometrización y en el número áureo, es decir, los arquitectos se apoyaron en una función matemática que refleja las proporciones de la naturaleza para resolver los distintos programas del edificio.
En esta época de fuertes tendencias evolutivas de los estilos arquitectónicos, pesa sobre los profesores de taller una grave responsabilidad: no se puede negar la justificación de estas nuevas tendencias pues responden a materiales, necesidades y costumbre nuevas, pero no se puede tampoco dejar en amplia libertad a los alumnos, pues es propio de los temperamentos juveniles asimilar fácilmente estas tendencias y, generalmente, las más avanzadas. El profesor deberá orientar a los alumnos teniendo en cuenta que el taller es un curso de composición arquitectónica y se puede aceptar estas tendencias modernas, siempre que respondan a la lógica y con una fuerte base arquitectónica.Fragmento de entrevista concedida por Alberto Risopatrón B. para El Diario Ilustrado[1] recogida por Max E. Aguirre González en LA ARQUITECTURA MODERNA EN CHILE (Escuela técnica superior de arquitectura de Madrid, 2004)[2]
- Bajo el análisis de esta cita de uno de los arquitectos involucrados en la ejecución del teatro se desprende la manera de pensar y de justificar el diseño en los proyectos de arquitectura en la época, y la manera de enfrentar las nuevas tendencias y como aplicarlas en nuevas construcciones.
- Su fachada principal orientada en dirección sur por la calle Arturo Prat, está compuesta en su estructura en hormigón armado y en su exterior de elementos decorativos de yesería dispuestos de forma simétrica, las ventanas presentan protecciones de fierro forjado que en su diseño recogen en sus curvas el barroco quiteño, la cornisa nos recuerda a un friso que representa los triglifos y metopas de la arquitectura griega; la fachada lateral ubicada en dirección al oriente por la calle victoria está compuesta en su estructura por albañilería confinada y ésta está modulada cada 3,5 m(aprox.). Las ventanas ubicadas en el ochavo son circulares, asemejándose a las ventanas de un barco; Tanto la fachada norte como la poniente no están trabajadas y dejan la albañilería expuesta a la vista.
- Restos de la decoración de metopas en el friso en el frontón del Partenón
- Decoración de metopas en el friso del Teatro de San Bernardo
- Superficie: 624 m²
- Hecho por los arquitectos: Alberto Risopatrón, Mario Valdivieso y Ramón Acuña
- Fecha de concurso: 1933
- Fecha de inicio de obras: 1934
- Fecha de entrega: febrero de 1938
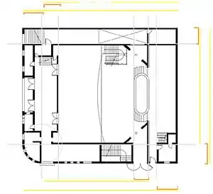
Análisis arquitectónico de las plantas del teatro


- Estilo de los ornamentos: Barroco Quiteño
- Estilo de la arquitectura: Moderno
- Materiales:
- Cimientos de cal y piedra.
- Muros de ladrillo y hormigón;
- adornos de cornisa (yesería), fachada e interiores de hormigón.
- Cubierta de zinc y entablado interior de raulí.
- Acero galvanizado y pintado en rejas de ventanas.
Referencias
- El Diario Ilustrado periódico chileno, editado en la ciudad de Santiago de Chile, que circuló entre 1902 y 1970, de tendencia política conservadora
- Max E. Aguirre Gonzalez, LA ARQUITECTURA MODERNA EN CHILE, Escuela técnica superior de arquitectura de Madrid, 2004