Serie H12 de FGC
La serie H12 de Ferrocarriles de la Generalidad de Cataluña está formada por una locomotora dual (eléctrica y diesel), mixta para tramos de adherencia y tramos de cremallera, puesta en servicio en 2019 en la línea del Cremallera de Nuria.
Serie H12 de FGC | ||
---|---|---|
Locomotora dual | ||
![]() La locomotora H12 en Núria, el día de su bautizo. | ||
Datos generales | ||
Fabricante | Stadler Rail | |
Año fabricación | 2019 | |
Potencia | 700 kW/400 kW | |
Motores | 1 motor diésel | |
Características técnicas | ||
Disposición de ejes | Boz' | |
Ancho de vía | 1.000 mm | |
Velocidad máxima | 60km/h | |
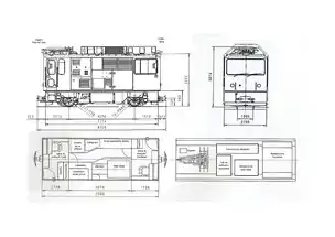
Longitud | 8.370 mm | |
Anchura | 2.700 mm | |
Altura | 3.874 mm | |
Peso | 28 T | |
Historia





Dadas las dificultades de explotación del Cremallera de Montserrat, debido a la insuficiencia de material rodante disponible (solo cinco unidades de tren), a mediados de los años 2016 FGC pensó como aumentar el parque de material disponible, pero al coste más reducido posible. Finalmente se decidió un plan que implicaba también modificaciones en el parque de material rodante del Cremallera de Nuria. Básicamente, este plan preveía el traslado de los dos automotores A10 y A11 del Cremallera de Nuria al de Montserrat, sustituyéndolos por una combinación de vehículos nuevos y de segunda mano. Esto comportó la adquisición de:[1]
- Dos remolques intermedios, de construcción completamente nueva, para intercalarlos en dos automotores de la serie A5-A8 del Cremallera de Nuria. De piso bajo, tenían que garantizar la accesibilidad universal que se perdería cuando marcharan los A10 y A11.
- Dos coches de viajeros de segunda mano, para completar la capacidad que se perdería cuando marcharan los A10 y A11 (los dos coches nuevos anteriores, y estos dos, sustituyen a los cuatro que forman estos automotores).
- Una locomotora, de construcción completamente nueva, para formar una composición reversible con los dos coches de segunda mano. Esta locomotora, además, se usaría para remolcar trenes de mercancías y de trabajos, motivo por el cual es dual (electro-diesel).
Una vez recibido este material, los dos automotores Stadler A10 y A11 serían enviados definitivamente al Cremallera de Montserrat.
El 8 de agosto de 2017 se adjudicó la construcción de la locomotora a Stadler Bussnang AG, siendo formalizado el contrato el 4 de septiembre siguiente.[2] Una vez construida en la planta suiza de Bussnang, fue trasladada a la localidad de Wil SG, donde Stadler tiene un centro de mantenimiento (para las unidades de tren eléctricas del ferrocarril Frauenfeld-Wil), y donde hizo la reforma de los coches 2273 y 2275, adquiridos de segunda mano dentro de la misma operación. Allí se hicieron varias pruebas estáticas con los coches, hasta que el 30 de julio de 2019 se cargó sobre un camión, para transportarla a Ribes de Freser.[3] La locomotora, junto con los dos coches 2273 y 2275, fueron descargados en Ribes de Freser el 6 de agosto siguiente.
La locomotora llegó pintada íntegramente del color azul corporativo del Cremallera de Nuria. Enseguida empezaron las pruebas. A finales de agosto fue vinilada con las franjas blancas y parte negro del frontal, siendo bautizada en la estación de Nuria el 1 de septiembre de 2019, fiesta de San Gil, con el nombre de Salvador Carrera, político catalán que fue alcalde de Ribes de Freser entre los años 1979 y 1983, y diputado en el Congreso español en tres legislaturas. Se rompía, así, la tradición de bautizar los trenes con nombres de cumbres de los Pirineos.
La función principal de la locomotora es la formación de una composición reversible con los coches 2273 y 2275, para prestar servicio de viajeros, aunque también puede remolcar trenes de mercancías y de servicio interior. Tras las pruebas y la formación del personal, prestó su primer servicio comercial el 6 de diciembre de 2019, remolcando estos dos coches.
Modelo normalizado de Stadler
Esta locomotora pertenece a un modelo normalizado del fabricante suizo Stadler Raíl, que desarrolló a mediados de los años 2010. En agosto de 2012, cinco empresas ferroviarias suizas hicieron un pedido conjunto a Stadler Raíl para la fabricación de un nuevo tipo de pequeña locomotora dual, capaz de funcionar alimentada eléctricamente desde la catenaria, o en modo autónomo con un motor diesel. El pedido fue de nueve locomotoras, que se repartieron de la siguiente manera:[4]
- Chemins de fer Montreux-Oberland Bernois (MOB): tres locomotoras sin cremallera, números Gem 2/2 2502 a 2504, puestas en servicio en 2016.
- Transport Montreux-Vevey-Riviera (MVR, del grupo MOB): una locomotora con cremallera, número HGem 2/2 2501, puesta en servicio en 2016.
- Transports Publics du Chablais (TPC): tres locomotoras con cremallera, números HGem 2/2 941 a 943, puestas en servicio el 2016.
- Transports Publics Fribourgeois (TPF): una locomotora sin cremallera, número Gem 2/2 18, puesta en servicio en 2016.
- Chemin de fer Nyon-St.-Cergue-Morez (NStCM): una locomotora sin cremallera, número Gem 2/2 451, puesta en servicio en 2017.
Además de estas nueve, hasta la fecha se han construido, o están en construcción, siete locomotoras más:
- Chemins de fer du Jura: dos locomotoras sin cremallera, números Gem 2/2 521 i 522, puestas en servicio en 2019.
- Ferrocarrils de la Generalitat de Catalunya: una locomotora para el Cremallera de Nuria, número H12, puesta en servicio en 2019.
- Appenzeller Bahnen (AB): dos locomotoras sin cremallera, números Gem 2/2 1095 y 1096, puestas en servicio en 2020.[5]
- Ferrocarrils de la Generalitat de Catalunya: una locomotora para la línea Llobregat-Anoia y el Cremallera de Montserrat, número 256.01, entregada en julio de 2020.
- Ferrocarriles eslovacos (ZSSK): una locomotora con cremallera para la línea de los Altos Tatras, pendiente de entrega.[6]
Características técnicas
La locomotora dispone de un bastidor de acero y una caja de aluminio. Esta caja está distribuida en tres espacios: las dos cabinas de conducción extremas, y la sala de máquinas entre ellas. Cada cabina dispone de un pupitre de conducción situado a la derecha en el sentido de la marcha, un asiento fijo al otro lado, y tiene un pequeño equipo de climatización. Se accede mediante una puerta batiente lateral. Desde las dos cabinas se puede acceder a la sala de máquinas mediante dos puertas batientes, que junto con el tabique de separación ofrecen un buen aislamiento acústico. El pasillo de la sala de máquinas está dispuesto en zigzag, quedando todos los elementos técnicos dispuestos en armarios cerrados y aislados a ambos lados. Yendo desde la cabina lado valle (cabina 2) hacia la cabina lado montaña (cabina 1), a la izquierda hay, sucesivamente, el convertidor de potencia; la torre de refrigeración de los equipos eléctricos; y los armarios eléctricos. A la derecha, el catalizador (y su depósito de urea), el compresor de aire y la bomba de vacío; y el grupo generador, con el motor diésel y el alternador. Los elementos técnicos de la sala de máquinas son accesibles desde el interior, y algunos también desde el exterior, mediante varias portezuelas batientes.
La locomotora está apoyada sobre dos ejes motrices, los dos con dos ruedas dentadas para la transmisión del esfuerzo y el frenado en los tramos de cremallera. Disponen de suspensión primaria por muelles helicoidales, complementada con amortiguadores. Cada eje motriz está accionado por un motor de tracción trifásico asíncrono, de 350 kW de potencia, suspendido por la nariz. Entre los dos ejes se sitúan los dos depósitos de combustible, con capacidad para 250 litros cada uno, y las baterías. En el techo están los escapes, un pantógrafo, elementos de ventilación y las resistencias del freno dinámico.
Los motores de tracción y el alternador de generación de corriente están fabricados por la empresa austríaca Traktionssysteme Austria GmbH (TSA). El equipo eléctrico está fabricado por la suiza ABB. El motor diesel es de la alemana Mercedes Benz del modelo OM502LA.E3B: con ocho cilindros, ofrece una potencia máxima de 480 kW y cumple la norma de emisiones Euro IIIB, con filtro de partículas de catalizador. El sistema de freno neumático es de la empresa suiza Facto AG.
La locomotora funciona de la siguiente manera: el convertidor de potencia alimenta los dos motores de tracción, variando la frecuencia y tensión de la corriente alterna trifásica (mediante un inversor) para modificar su velocidad. El convertidor de potencia es alimentado eléctricamente desde un circuito intermedio de corriente continua, que puede tomar la corriente bien de la catenaria a través del pantógrafo, bien del grupo generador (motor diésel y alternador). Cuando se usa el freno dinámico, los motores de tracción se convierten en generadores, enviando la corriente eléctrica a las resistencias de freno situadas en el techo, donde se transforma en calor.[7][8]
La locomotora dispone de los siguientes sistemas de freno: electrodinámico (convirtiendo los motores de tracción en generadores); neumático sobre la llanta de las ruedas para cuando circula en tramos de adherencia (una zapata con un cilindro propio en cada rueda); neumático de cintas sobre tambores calados a los ejes para cuando circula por tramos de cremallera, de los sistemas 1 (freno de servicio) y 2 (freno de emergencia); y de estacionamiento por muelles acumuladores. El freno de servicio neumático, tanto para adherencia como para cremallera, funciona con aire comprimido. Así mismo, la locomotora suministra aire comprimido a través de la Tubería General de Freno (TGF) a los vehículos remolcados para poder gobernar sus frenos. No obstante, también dispone de una bomba de vacío y la conducción correspondiente, para poder accionar el freno de vacío con que van equipados los coches 2273 y 2275, con los cuales irá normalmente acoplada formando una composición reversible.
El acoplamiento entre vehículos se hace mediante el tradicional sistema manual de tope central y dos ganchos y tensores laterales.
Cuadro de características
Característica | Locomotora H12 |
---|---|
Tipo suizo | HGem 2/2 |
Rodaje | Boz’ |
Alimentación eléctrica | 1.500 Vcc |
Ancho de vía | 1.000 mm |
Sistema de cremallera | Abt |
Longitud entre topes | 8.320 mm |
Anchura máxima | 2.700 mm |
Altura máxima | 3.874 mm |
Distancia entre ejes | 4.250 mm |
Peso en servicio | 28 T |
Potencia en tracción eléctrica | 700 kW |
Potencia en tracción diésel | 400 kW |
Potencia para equipos auxiliares | 25 kVA |
Esfuerzo tractor máximo en adherencia | 70 kN |
Esfuerzo tractor máximo en cremallera | 135 kN |
Velocidad máxima en adherencia | 60 km/h |
Velocidad máxima en cremallera ascendente | 25 km/h |
Velocidad máxima en cremallera descendente | 19 km/h |
Referencias
- Carril (Barcelona: Associació d'Amics del Ferrocarril de Barcelona) (número 82). 2017. ISSN 1136-2499.
- «Fabricació i subministrament d'una nova locomotora mixta (adherència/cremallera) tipus bimodal (dièsel - elèctrica), i dos cotxes remolcats per al cremallera de vall de Núria dels ferrocarrils de la generalitat de Catalunya. (PO14/17)». Contractació pública Generalitat de Catalunya. Consultado el 1 de agosto de 2019.
- «Stadler-Lok erklimmt bald die Pyrenäen». Bahnonline.ch. Consultado el 3 de septiembre de 2019.
- «Neue MOB Infrastrukturloks Gem 2/2 auf Probefahrt». Bahnonline.ch. Consultado el 3 de septiembre de 2019.
- «Appenzeller Bahnen electro-diesel locomotives delivered». Railway Gazette. Consultado el 3 de enero de 2020.
- «Stadler to deliver tailor-made rack-and-pinion rolling stock for ZSSK». Railcolornews. Consultado el 3 de septiembre de 2019.
- «Dual-Power diesel rack-and-pinion locomotive». Stadlerrail.com. Consultado el 3 de septiembre de 2019.
- «TPC HGem 2/2». École polytechnique fédérale de Lausanne (EPFL). Consultado el 3 de septiembre de 2019.