Mezquita As-Salam
Mezquita As-Salam es un lugar de culto para los seguidores de la fe islámica, fue la primera mezquita construida en Chile. Está ubicada en el número 2975 de la calle Campoamor, haciendo esquina con la avenida de Chile España, Ñuñoa, Santiago, Chile. Su planificación comenzó en 1986, por el arquitecto William Tapia Chuaqui, y su construcción en 1988 por iniciativa de Taufiq Rumie quien dirigió la comunidad musulmana chilena, terminando su construcción en 1990.
Mezquita As-Salam | ||
---|---|---|
![]() | ||
Localización | ||
País | Chile | |
División | Santiago de Chile | |
Dirección |
![]() | |
Coordenadas | 33°27′03″S 70°35′55″O | |
Información religiosa | ||
Culto | islámico | |
Advocación | Dios (Alá) | |
Historia del edificio | ||
Fundación | 1989 | |
Construcción | 1986-1990 | |
Arquitecto | William Tapia Chuaqui | |
Sitio web oficial | ||
Deriva del árabe masyid ('lugar donde arrodillarse o estar postrado'), lo que refleja perfectamente la actitud de sometimiento del musulmán cuando reza. Esa es la traducción del vocablo Islam. El edificio definido por este término constituye no solo el templo donde los musulmanes se reúnen para rezar a Dios a su largo de la historia, si no que se ha convertido el símbolo del islam como religión y civilización, así para conocer la historia del pasado del islam la mezquita representa uno de los más importantes y espectaculares de los vestigios materiales.

Contexto histórico
El islam en Chile es profesado en la actualidad por más de 3300 musulmanes, según el censo del año 2012. El primer grupo de inmigrantes musulmanes que llegó a Chile lo hizo en 1856, aproximadamente, proveniente de los territorios del Imperio Otomano, (los actuales Siria, Líbano y Palestina). Estos fundaron en San Felipe la Sociedad Unión Musulmana de Chile en septiembre de 1926. Tras la finalización de la mezquita, aumentaron los chilenos que se convirtieron al islam y que pasaron a integrar un nuevo elemento de la sociedad islámica de Chile, que debe constantemente aprender las costumbres que Mahoma dejó como legado. La más importante es por qué la oración se dirige a La Meca.
Chile no se caracteriza por tener inmigraciones masivas, pero la mayor parte de los inmigrantes musulmanes que llegaron en la primera ola se establecieron en la Comuna de Ñuñoa. Actualmente, hay un total de aproximadamente 103 musulmanes que profesan el islam en esta comuna, según el censo del año 2002.
Historia de la mezquita
Primer templo musulmán en Chile. La construcción se inició en 1988 con esfuerzos de árabes que pusieron su aporte económico para el terreno. La obra se levantó gracias a la Liga Mundial Islámica y aportes privados, finalizando en 1989, y se inauguró por el príncipe de Malasia en 1996. La mezquita se emplazó en Ñuñoa debido a que en esos años la mayor cantidad de inmigrantes musulmanes llegaron a esta comuna.
Actualmente, la mezquita está dirigida por un directorio con uno de los hijos de Taufiq Rumie, Mohammed. En la mezquita se practica Jammah At Tabligh, el recordatorio a los musulmanes que siguen esta filosofía de su rol como creyentes en Chile y en el mundo.
Arquitectura








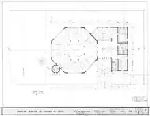
La mayoría de las mezquitas son de planta rectangular para así formar una larga hilera de oración. En cambio esta fue construida con una forma octogonal, privilegiando la dirección perpendicular hacia La Meca, la que se genera en la intersección entre las calles Campoamor y la avenida de Chile España. El ejemplo histórico más importante de mezquita con planta octogonal es la Cúpula de la Roca de Jerusalén.
La mezquita posee tres niveles, los cuales se dividen en dos salones. La planta baja, es decir, nivel -70 cm de la construcción se utiliza para distintos fines, tales como, funerales, ceremonias, entre otros.
La sala de oración, es decir, el salón principal se encuentra en el segundo nivel, lugar de mucho respeto para los musulmanes, rodeado por ventanas en forma de arco de herradura. Este se ubica a +270 cm del nivel de calle y posee una doble altura, la cual genera el espacio para contener un sobre nivel, el que vendría siendo el tercer nivel, es decir, a +640 cm. Ambos se conectan entre sí por una escalera. A partir de la doble altura, el salón genera dos espacios distintos, para hombres y mujeres, con la finalidad de no tener ningún tipo de distracción durante la oración.
El salón principal en ambos niveles se encuentra cubierto por una gran alfombra de color verde y sandía, simbolizando un arco lobulado, el que indica el lugar para posarse y dirección a Makkah. En la parte superior, es decir, como remate de la doble altura se sitúa la cúpula de cobre, que junto al minarete, poseen una luna en la cumbre. Esto es un elemento característico de la arquitectura islámica, ya que los musulmanes se rigen por el calendario lunar, el cual toma en consideración tanto las fases del sol como de la luna. Por esta razón las construcciones islámicas adoptan este símbolo, para así, destacar y diferenciarse del resto de construcciones.
A diferencia de la mayor parte de otros lugares de culto, no se permiten las imágenes de personas, animales ni figuras espirituales, ya que todos los asistentes deben centrar su atención en Allâh. Por lo que, las mezquitas tienen blancos muros con versos del Corán en caligrafía árabe para ayudar a los que rezan a centrarse en la belleza del Islam y su libro sagrado.
El ángulo que se genera en la intersección de las calles, es paralelo al que se genera con los muros de la mezquita, a los cuales se les llama la qibla, este se encuentra en el lugar más visible del salón. En el centro de la qibla se ubica el mihrab decorado con mosaicos. Este pequeño ábside indica la dirección a la Meca, es decir, la orientación donde los fieles deben efectuar su oración. A su lado se ubica el Mimbar, donde el imán se dispone a dirigir la oración.
En el exterior de la mezquita está el minarete, una alta y esbelta torre situada en la esquina oeste de la estructura. Desde aquí se efectúa el canto para la oración o adhan, con el que se llama a los fieles para que accedan al salón para comenzar la oración. Se debe orar cinco veces al día con los fieles postrados en dirección a La Meca. La punta del minarete es siempre el punto más alto de las mezquitas que lo poseen.
La llamada a la oración
Según la tradición, el primer muadh-dhin (el que hace el Adhan, anuncio de la oración) en tiempos del profeta Mahoma fue un abisinio llamado Bilal a quien se le encargó, por tener una bella voz, la misión de llamar a la gente para las oraciones. Esto se produjo luego que en sueños de dos respetados musulmanes de la época le contaran a Mahoma las palabras que debían ser usadas.
El primer llamado a la oración (salah) fue en la ciudad de Medina, ya que los musulmanes de esa época habían sido expulsados de La Meca. Tras la conquista de La Meca, se encaramó sobre la Kaaba y convocó a los fieles a las cinco oraciones diarias prescritas por el Corán.
Véase también
Referencias
1. MICHELL, George, Architecture of the Islamic World. Londres: Thames and Hudson Ltd, 1995, 10-16
2. BARRUCAND, Marianne, Arquitectura islámica en Andalucía. Italia: Benedikt Taschen Verlag GmbH, 1992, 22-24
3. STIERLIN, Henri, El Islam desde Bagdad hasta Córdoba. Singapore: Taschen GmbH, 2002, 14-16
4. MIRANDA, Irene, Guía Metodológica: Ojo con Ñuñoa. Santiago - Chile: Andros Impresores, 2008, 19
Enlaces externos
Wikimedia Commons alberga una categoría multimedia sobre Mezquita As-Salam.
- Mezquita As-Salam, sitio web oficial.