Catedral de Xochimilco
Este templo y exconvento fue edificado por los misioneros franciscanos en el siglo XVI, pero la iglesia actual fue construida en el año 1535 aproximadamente, ya que se desconoce la fecha exacta de su construcción. Su santo patrono, San Bernardino de Siena, murió en Aquila (Italia) el 20 de mayo de 1444 y fue canonizado seis años después de su muerte. En 1535 se dedicó este recinto al santo italiano y la iglesia se convirtió en uno de los principales templos construidos durante la conquista española. Fue declarado monumento histórico el 28 de enero de 1932
Catedral y exconvento de San Bernardino de Siena | ||
---|---|---|
San Bernardino | ||
Monumento histórico | ||
![]() | ||
Localización | ||
País |
![]() | |
División |
![]() | |
Subdivisión |
![]() | |
Dirección | Av. Nuevo León 22B, Santa Crucita. | |
Coordenadas | 19°15′47″N 99°06′07″O | |
Información religiosa | ||
Culto | Iglesia católica | |
Acceso | Cerrado por los daños del sismo del 19 de septiembre de 2017 | |
Uso | Abierto al culto | |
Estatus | Parroquia | |
Advocación | Bernardino de Siena | |
Patrono |
-Luis Martín Cortés Cerón de Alvarado, cacique de Xochimilco -Martín Cerón de Alvarado | |
Historia del edificio | ||
Fundador | Martín de Valencia | |
Construcción |
Templo: 1530-1600 Convento: 1561-1604[1] | |
Datos arquitectónicos | ||
Estilo | Renacentista, Plateresco | |
Materiales | Muros de mampostería con piezas de tezontle, ladrillos y sillares de tepetate. | |
Nave principal | Una nave | |
Cúpula | Octagonal con linternilla, concluida en 1609 | |
Longitud | 61.32 m | |
Anchura | 17.64 m | |
Planta del edificio | ||
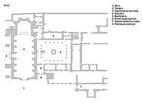
![]() Plano del conjunto | ||
En el interior se pueden apreciar varios retablos laterales dorados, todos estos pertenecen a distintos períodos y estilos. La obra de arte más importante de este templo es el retablo mayor que se destaca por su riqueza en relieves, estatuas policromadas y pinturas.
Historia

Se encuentra ubicada en el centro de Xochimilco, gracias a sus características geográficas y topográficas, adquirió una gran importancia para el gobierno español desde los inicios de la conquista. Tanto a los conquistadores como a los evangelizadores, la construcción de esta iglesia sirvió como punto de cohesión e identidad social, ya que permitió una estrecha relación entre el indígena, el español y los primeros mestizos.
Algunos misioneros franciscanos que llegaron a Xochimilco como fray Bartolomé de Olmedo y fray Francisco de Soto, entre otros, encontraron en Xochimilco un pueblo bien organizado y cooperativo, lo cual le permitió a los religiosos cumplir paulatinamente su labor misionera. De inmediato, se dieron a la tarea de levantar una capilla cuya construcción inició hacia 1535, y en 1590 se culminó la obra con un complejo de templo, convento y colegio que atendió a los indígenas por un periodo de dos siglos. Gran parte del capital utilizado para su construcción fue aportado por los habitantes de la misma delegación.
La iglesia estuvo a manos de los franciscanos hasta el año de 1756, cuando fue habitada como parroquia al haber sido cedida al clero secular.
En 2017 una parte del campanario que se encuentra arriba de la entrada principal y la barda de acceso de la iglesia se colapsaron con el terremoto de 7.1 grados ocurrido el 19 de septiembre que a su vez dejó algunas grietas menores al interior del edificio.[2]
Daños provocados por el sismo de 2017

El temblor de 2017 afectó como ningún otro los monumentos históricos de la ciudad de México, la catedral de San Bernardino de Siena fue uno de los templos con mayores daños: colapso de arcada atrial principal, poniente y grandes tramos de muro atrial, abertura de juntas de cantera en portada, fractura vertical en muro de portada desde el sotocoro a coro, desprendimiento de mampostería, grietas en bóveda de coro y desajuste de los dos portones de madera en el acceso al templo.
Trabajos de reconstrucción en el templo de San Bernardino de Siena
Como parte del programa de reconstrucción encabezado por el gobierno de Ciudad de México, la Comisión para la Reconstrucción de la Ciudad de México aportó recursos para la rehabilitación de 21 templos, entre ellos la Catedral de Xochimilco, ya que requerían de una atención inmediata a fin de que las comunidades pudieran hacer uso de sus patrimonio sin que significase un riesgo para ellos,
Dentro de los trabajos para la rehabilitación del templo de San Bernardino, están la reconstrucción de la Barda Atrial y de la Arcada real, mientras que en el templo se trabajó: el coro, sotocoro y fachada, la capilla oratorio y el vestíbulo de la sacristía. Se realizaron calas exploratorias sobre la trayectoria de grietas y fracturas para determinar la existencia de pintura mural.
En cuanto a los bienes muebles los trabajos consistieron en la limpieza general de las diferentes piezas de órganos y la construcción de encofrados de madera para el resguardo de los diferentes elementos y muebles de los órganos.
Recinto
En su interior reposa el retablo principal, que es una pieza distinguida en cuanto a su ornamentación; en él destacan pinturas como de la Virgen, Jesús y de San Bernardino entre otros; lo enmarcan tallas de santos en madera policromada en varios niveles. En las paredes del recinto existen retablos con pinturas, de menor ornamentación y antigüedad, pero muy interesantes como devocionarios del pueblo, que se conservan en regular estado. A ambos lados del altar se hallan estrados de madera tallada los cuales son muy característicos de los templos franciscanos.
A la entrada del templo hay una escultura muy visitada, la imagen de San Judas Tadeo que se encuentra enmarcada por flores y testimonios de agradecimiento por algún favor cumplido, en la actualidad su imagen está protegida con cristales debido al desgaste ocasionado por el contacto físico con los fieles.
En la parte exterior encontramos la capilla de la Tercera Orden, compuesta por una sola nave de cuatro tramos que corresponden a finales del siglo XVII, cuya portada en cierta forma hacer referencia a la puerta de acceso lateral del templo principal, misma que guardó un significado especial para la orden franciscana.

Celebraciones
El recinto es también sede litúrgica de la VIII Vicaría Episcopal “San Juan Bautista” que preside el Sr. obispo Rogelio Esquivel Medina, y entre sus clásicas tradiciones resalta la adoración del “Niño pan”, que domingo a domingo fortalece la unidad de los fieles. En mayo se celebran festividades a san Bernardino de Siena, durante todo el mes se llevan a cabo diferentes actividades tanto culturales como artísticas y religiosas como son conferencias, visitas guiadas al templo, danzas tradicionales, teatro, música y celebraciones litúrgicas con la participación de los pueblos vecinos; ferias artesanales, juegos mecánicos y bailes se han agregado desde hace varios años a esta tradicional celebración que se da año con año.
Referencias
- Peralta Flores, Araceli (2018). «Levantamiento arquitectónico del conjunto conventual de San Bernardino de Siena, Xochimilco, con la tecnología escáner láser 3D». Publicaciones ENCRyM: 74-108.
- Excelsior: Se derrumba parroquia de San Bernardino en Xochimilco